CASA CECILIA (TAJAMARES DE LA PEDRERA – ROCHA – URUGUAY)
La casa está ubicada en un conjunto denominado Tajamares de la Pedrera a 3 kilómetros del pueblo y a 200 de Montevideo, sobre la costa Uruguaya.
El lote de 5.000 m2 está ubicado en la parte alta del Complejo y ofrece visuales hacia el mar y hacia las ondulaciones típicas de la campaña uruguaya.
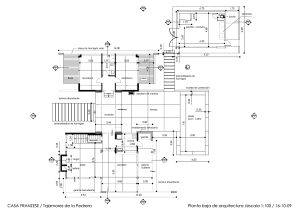
Orientada de manera de captar las mejores visuales del entorno la casa materializada como una caja de cristal y hormigón de doble altura, con sus expansiones alrededor, domina los 4 puntos cardinales desde un sitio privilegiado.
Resuelta en 2 plantas, ubicando el área social en planta baja y las habitaciones en planta alta con balconeo sobre el estar.
Equipo de Proyecto y Direccion de Obra
Arq. Verónica Franzese
Estudio Arqs. Flah y Asociados





