Que Ofrecemos
Áreas de Especialización
- Proyecto y Dirección de Obras
- Cálculo de factibilidad constructiva a partir de una demanda especifica.
- Modelado de Anteproyecto / con análisis de asoleamiento y estudio energético.
- Documentación para presentaciones de Anteproyectos.
- Documentación técnico – licitatoria / ejecutiva del proyecto.
- Cómputos del modelo 4D -Diagrama de Gantt.
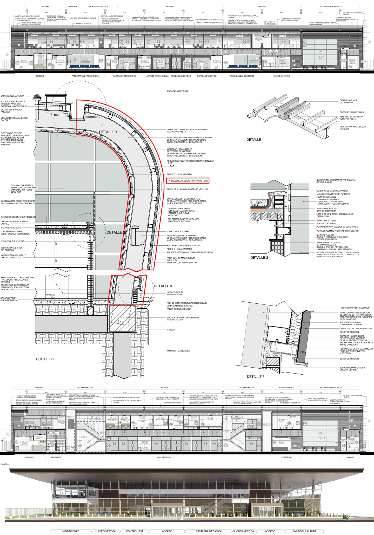
- Desarrollo de detalles constructivos para la ejecución de la obra
- Modelado de Prototipo (Arquitectura).
- Modelado de Prototipo (Estructura).
- Modelado de Ingenierías en 3D (MEP).
- Coordinación de Ingenierías.
- Detección de interferencias de las Ingenierías intervinientes.
Programas que utilizamos
- Revit (Autodesk).
- Navisworks (Autodesk).
- Formit (Autodesk)
- Enscape (Render en tiempo real & Realidad virtual).
- Oculus Rift (Realidad Virtual).
- Camtasia (TechSmith).
- Autocad (Autodesk).
- 3DMAX (Autodesk).
- Gimp.






