CASA PASCUAL (TAJAMARES DE LA PEDRERA – ROCHA – URUGUAY)
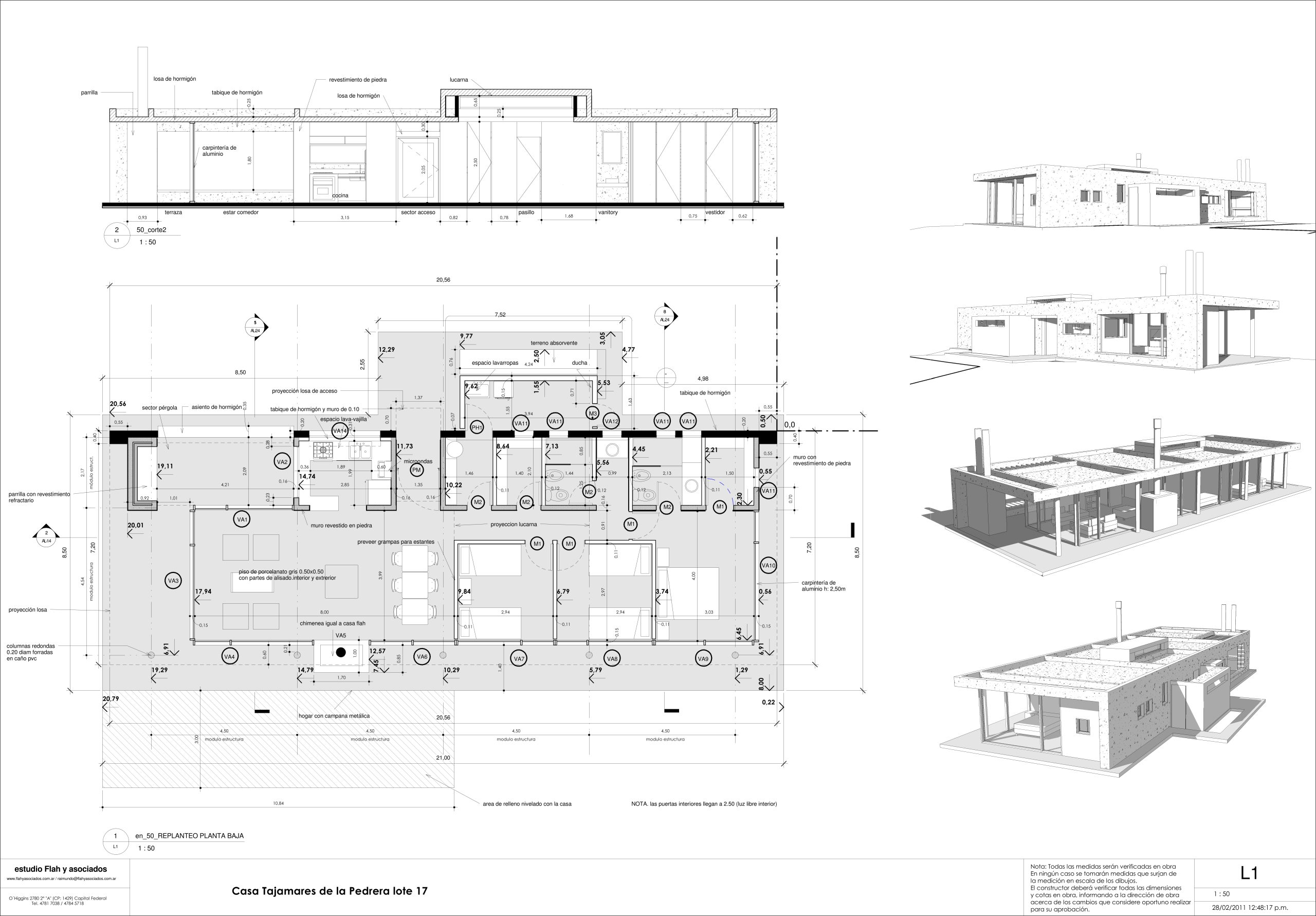
El lote está ubicado en la zona más alta del complejo. La idea consistió en abrir la casa de un lado hacia las mejores visuales y orientación y por el otro cerrarlo hacia la ruta 10 con un muro de hormigón visto.
Esto tenia como finalidad contener los servicios sobre ese muro y aislar los ruidos proveniente de la Ruta.
La abertura hacia las visuales del mar se resolvió con una carpintería de grandes paños vidriados
Una pergola y deck de madera completan el sector de expansión hacia el frente.
Proyecto, Dirección y Documentación
Estudio Arqs. Flah y Asociados
Construccion Arq. Enrique Trucco




