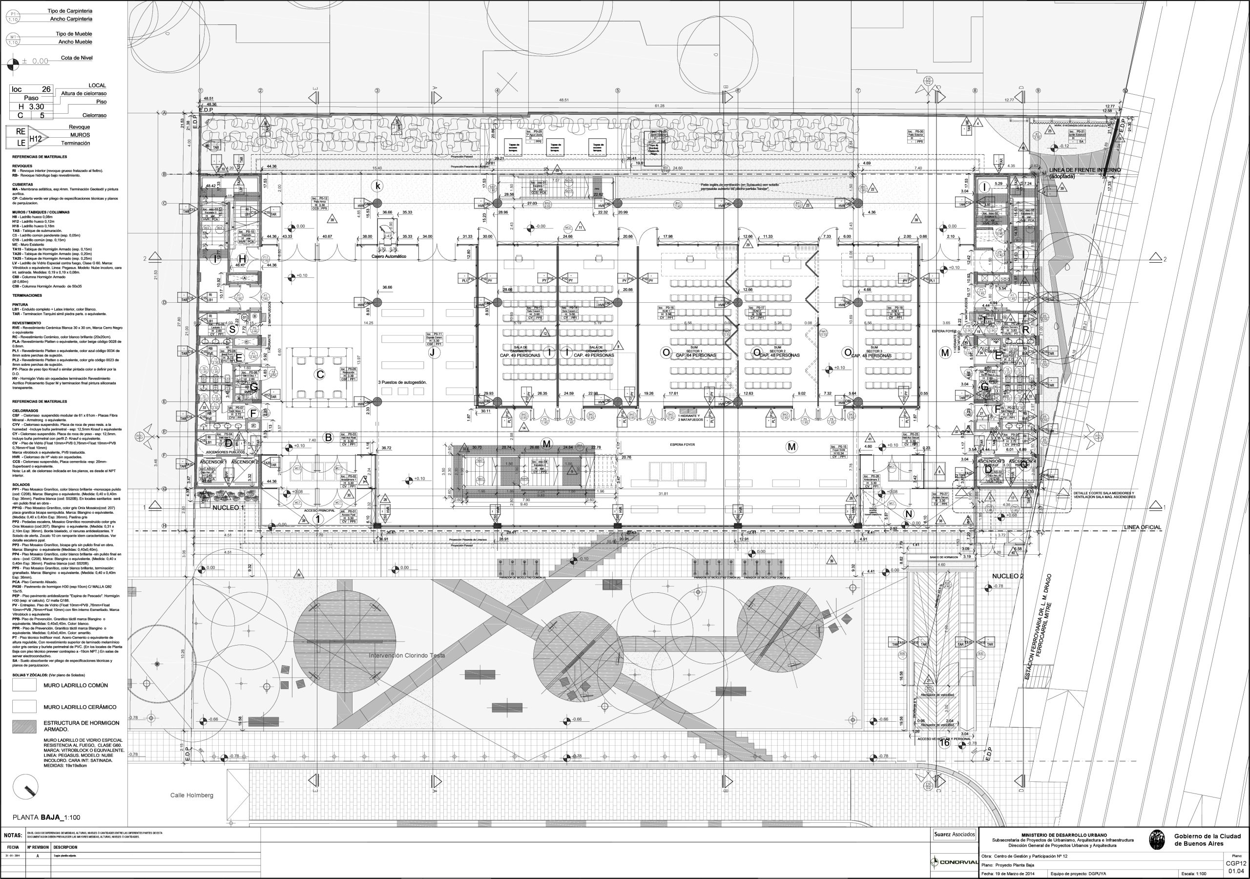
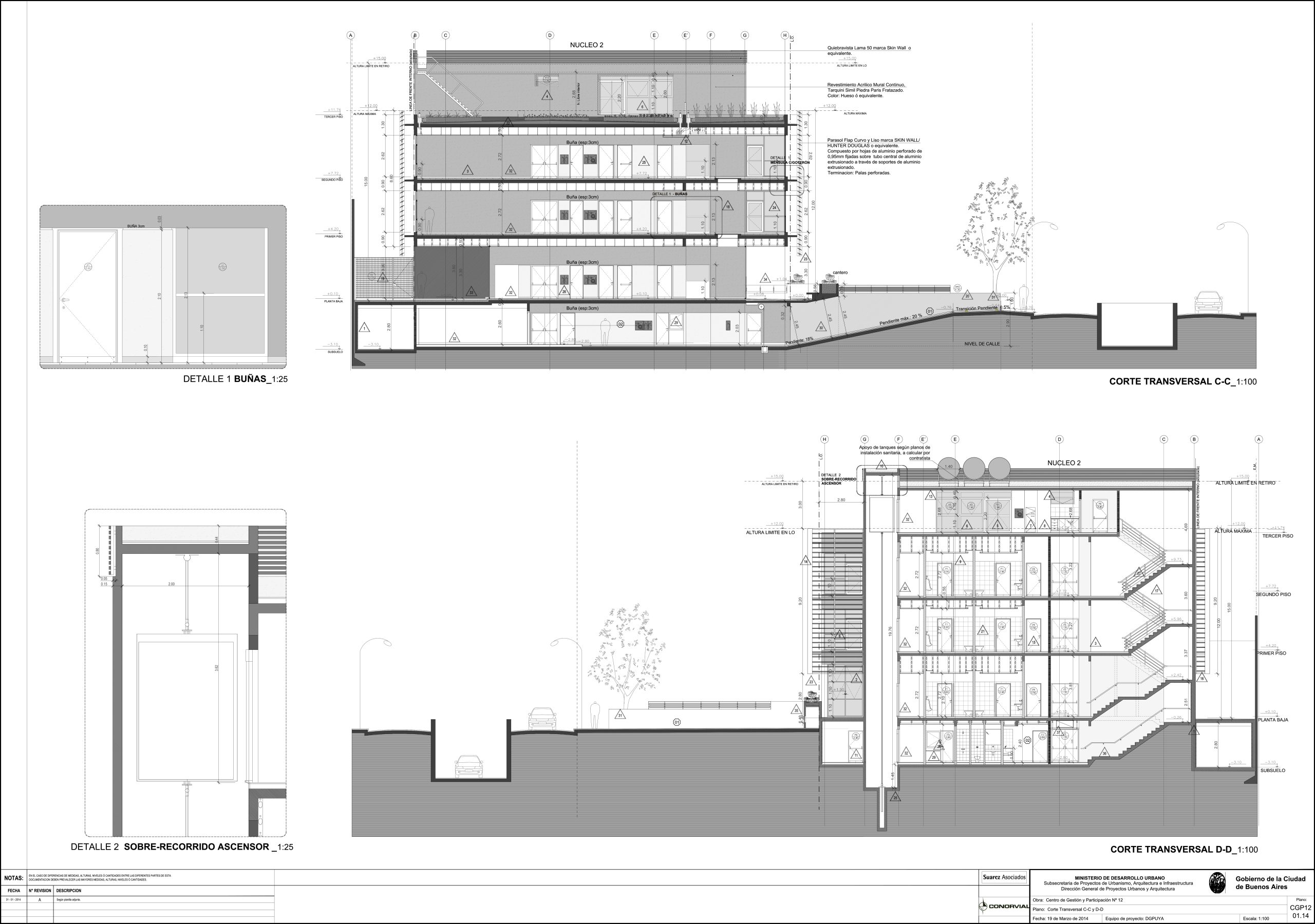
CGP12 NUEVA SEDE DE LA COMUNA 12 DEL GOBIERNO DE LA CIUDAD (CALLE HOLMBERG 2548 – CABA – ARGENTINA)
La comuna 12 es una de las sedes administrativas mas importantes de las 15 de la Ciudad de Buenos Aires.
Integra los barrios de Coglhan, Saavedra, Villa Urquiza y Villa Pueyrredon.
La importancia requería un nuevo edificio para cumplir con las necesidades ciudadanas.
El nuevo edificio cuenta con subsuelo y 3 pisos, interconectados espacialmente.
El diseño busco integrar los valores positivos de la tecnología y la interacción comunitaria.
Equipo de Proyecto
Gobierno de la Ciudad de Buenos Aires
Dirección de Obras y Proyectos
Ajuste de Proyecto y Documentación BIM
Estudio Arqs. Flah y Asociados










