EDIFICIO CONGRESO

EDIFICIO CONGRESO (AV. CONSTITUYENTES 5501 ESQ. CONGRESO – CABA – ARGENTINA)

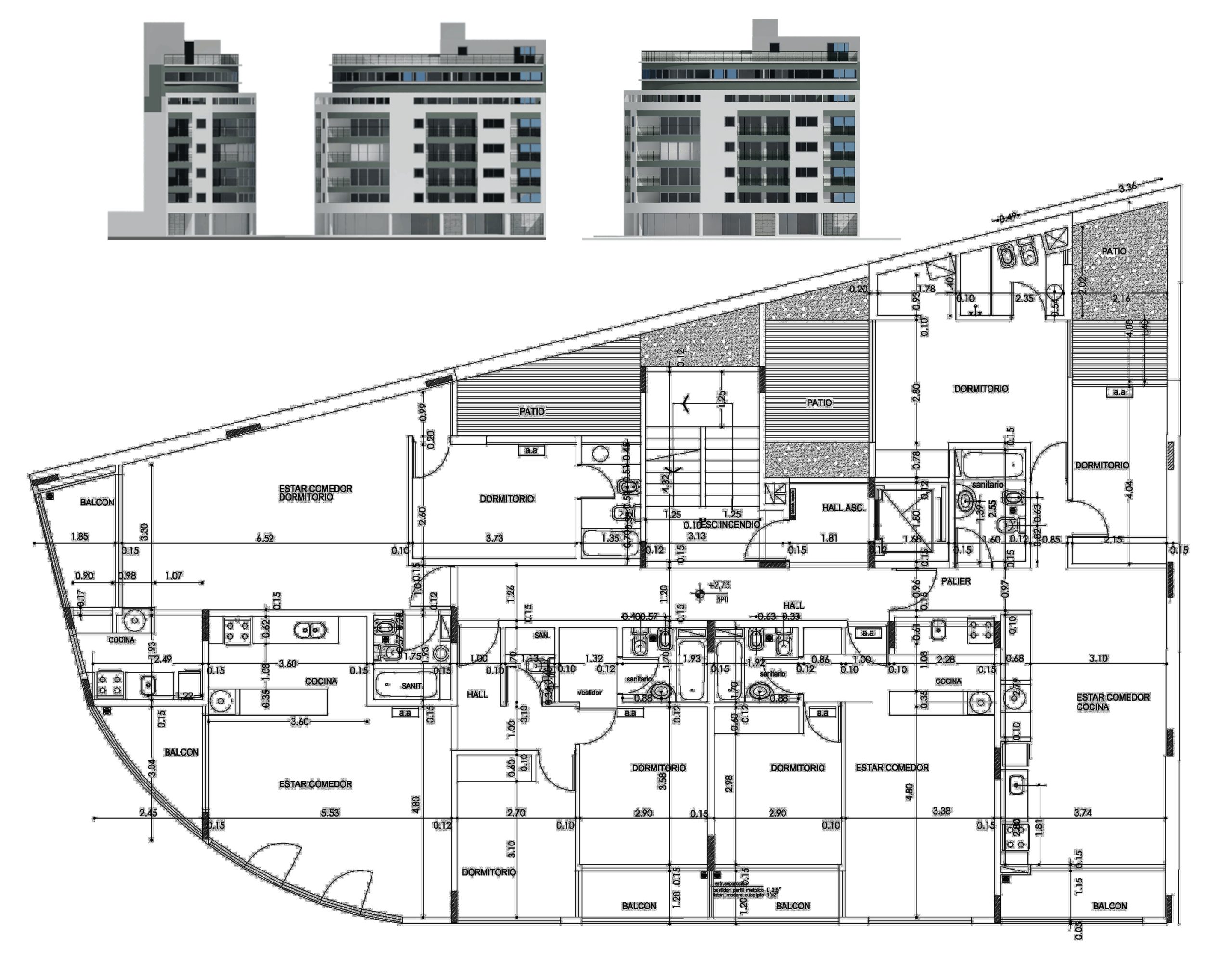
Se trata de una esquina histórica de Villa Urquiza. La propuesta volumétrica tenia como premisa crear una imagen que mantenga la idea de hito urbano.

El cruce de ambas arterias requería un edificio que funcione como una rotula, generando una continuidad espacial ampliando las visuales desde hacía Av Constituyentes.

El edificio este compuesto por unidades de 1 y 2 ambientes y dúplex en los retiros, dando todos los ambientes al exterior.

Cuenta con subsuelo de cocheras, 9 plantas de viviendas y terraza con piscina y solario.

 

Equipo de Proyecto y Dirección

Estudio Arqs. Flah y Asociados

Comitente Neocongreso SA

 

 

Scroll al inicio