LOTE 06 MANZANA 168 BEST (BARILOCHE PCIA. DE RIO NEGRO – ARGENTINA)
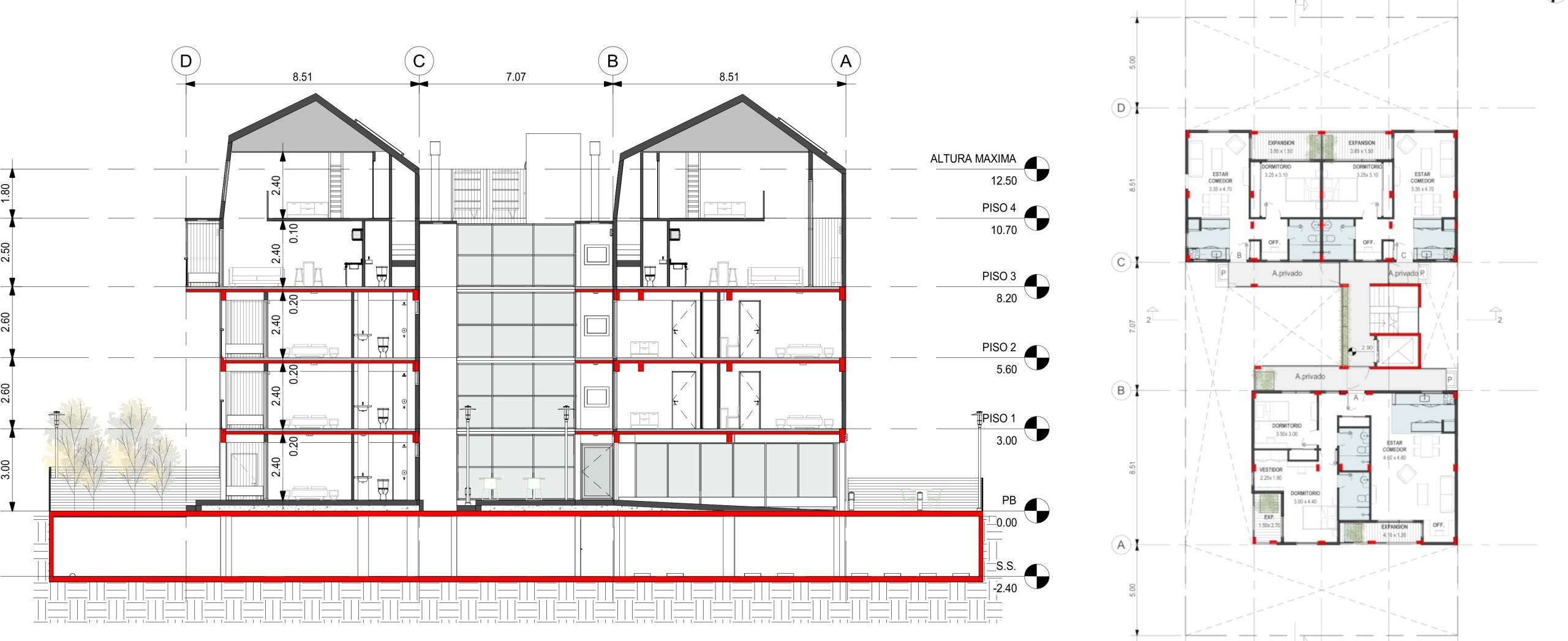
Se trata de un edificio ubicado en un lote de 15.00m x 34,10 sobre la Av. Bedini en la manzana 168.
Está compuesto por subsuelo, Planta baja y cuatro pisos. Los últimos dos pisos son unidades Dúplex.
En el bloque del frente se ocupan solo 3 de estos módulos dejando libre las visuales hacia el cuerpo posterior que ocupa el ancho total del lote, aprovechando el abra que se produce para que, tanto el patio interior como las unidades que ventilan al mismo se beneficien con la buena orientación al Norte..
Desde el punto de vista técnico se proyecto pensando en una estructura de hormigón cumpliendo con los requerimientos antisísmicos y el cierre tanto exterior como interior en construcción en seco.
Proyecto
Estudio Arqs. Flah y Asociados









