TORRES DE CONTROL
Las Nuevas Torres de control tienen como objetivo principal la mejora de las condiciones de operatividad, visibilidad, seguridad y confort de sus operarios, a la vez que constituye un nuevo icono de atractivo visual en el conjunto de la terminal. Se ubican como un edificio exento e independiente de las terminales, sobre el borde de la plataforma. Dicho edificio está emplazado estratégicamente para facilitar las operaciones desde la torre sin obstáculos.
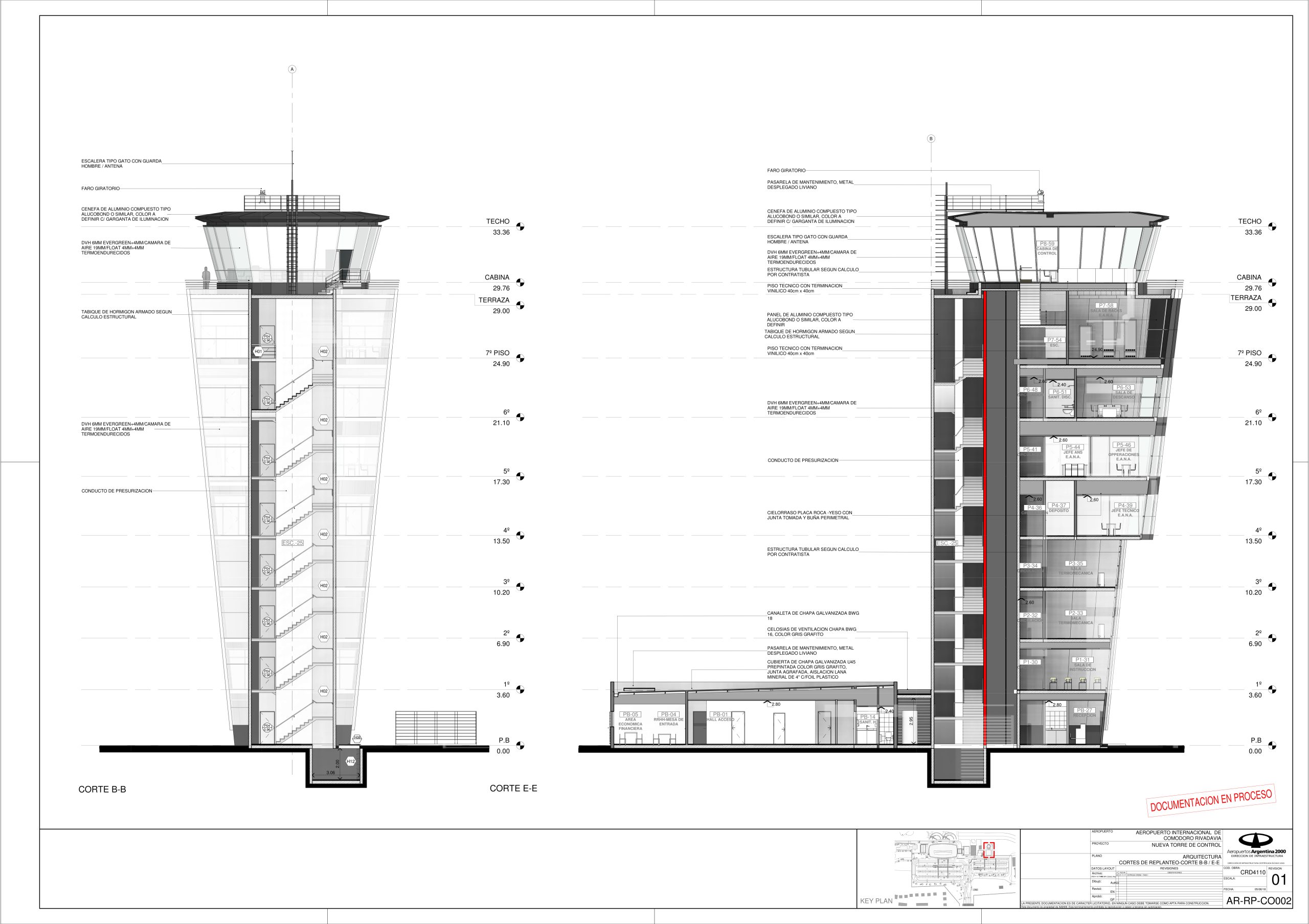
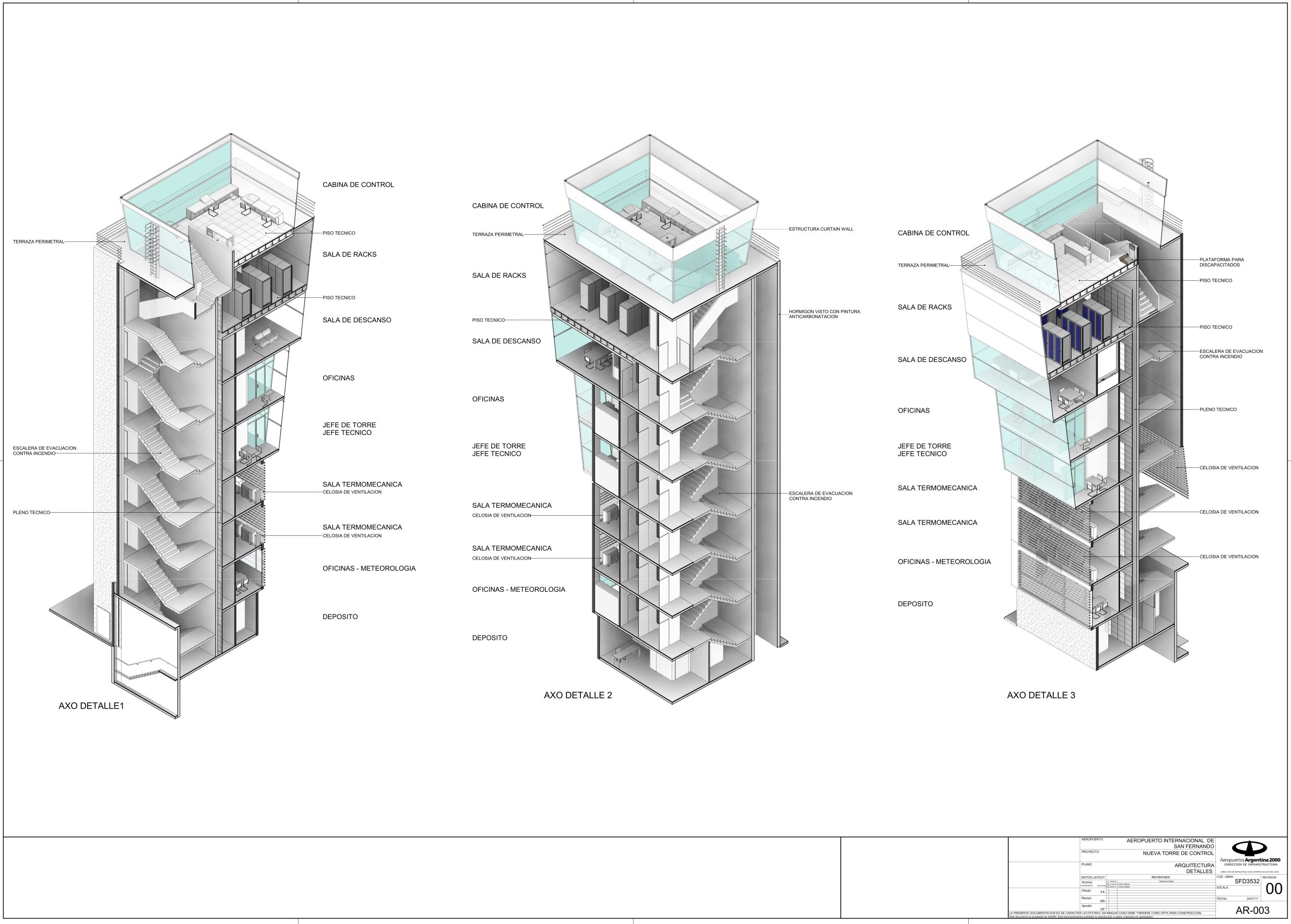
Las Torres se desarrollan básicamente en tres partes: el volumen anexo, el fuste y el cabezal.
El volumen anexo resuelve en planta baja todos los requerimientos técnicos según cada proyecto (tanques de reserva, de reserva de incendio, Sala de TGBT, oficinas, etc.)
El fuste posee varios niveles donde se elevan todos los medios de circulación vertical de la Torre, los palieres y servicios en algunos de los pisos.
En el cabezal se proyecta un nivel de oficinas requeridas por CONTER con vista a plataforma; otro nivel destinado para descanso que incluye un amplio estar con cocina; y un tercer nivel técnico donde se ubican espacios para Racks y equipos de ventilación.
Por último, se encuentra la cabina que posee las dimensiones necesarias para ubicar cinco puestos de trabajo. La forma del fanal genera que se adapte fácilmente a la morfología del resto de edificio y además que tenga un aspecto monolítico expresado con el uso del frente integral de vidrio con visibilidad 360°. Se previo la accesibilidad al fanal por personal con movilidad reducida, para lo cual se diseñó una escalera que pudiera albergar una plataforma para el uso de silla de ruedas.
El nuevo plano de observación, conjuntamente con su ubicación estratégica en el terreno, otorga a los operadores visuales despejadas con una sensible mejora respecto a los ángulos de visión hacia ambos umbrales de pista y toda el área de movimiento de aeronaves.
Equipo de Proyecto
Aeropuertos Argentina 2000
Direccion de Infraestructura
Ajuste del Proyecto y Documentacion Ejecutiva BIM
Estudio Arqs Flah y Asociados
TORRE DE CONTROL DE JUJUY (JUJUY – ARGENTINA)



TORRE DE CONTROL DE COMODORO RIVADAVIA (CHUBUT – ARGENTINA)



TORRE DE CONTROL DE FORMOSA (FORMOSA – ARGENTINA)


TORRE DE CONTROL DE SAN FERNANDO (PCIA. DE BUENOS AIRES – ARGENTINA)




EDIFICIOS DE SERVICIOS DE SALVAMENTO Y EXTINCION DE INCENDIOS
Los edificios constan de 2 plantas. En la planta baja se ubica el estacionamiento de las autobombas, locales de servicios varios, sala de máquinas, sala de tanques, sala de datos, gimnasio y deposito. En la planta alta se desarrollan los dormitorios, vestuarios, office y comedor del personal.
Dispone de dos tanques de agua para servicio contra incendio y un tanque de reserva para consumo, sala de recarga de equipos autónomos, depósito de agentes extintores, plataformas para la carga de espuma, una sala de operaciones, y una sala de alarmas vinculada directamente a la Torre de Control del Aeropuerto, mediante un sistema que emite una señal de alerta que se propaga por todas las instalaciones del edificio y acciona la apertura automática de los portones de salida de las autobombas.
La resolución formal del edificio busca consolidar la imagen pregnante de fácil lectura e identificación en el conjunto, tanto su forma y color.
Equipo de Proyecto
Aeropuertos Argentina 2000
Direccion de Infraestructura
Ajuste del Proyecto y Documentacion BIM
Estudio Arqs. Flah y Asiociados
SSEI BARILOCHE (PCIA. DE RIO NEGRO – ARGENTINA)



SSEI CORDOBA (CORDOBA – ARGENTINA)


MEP

SSEI LA RIOJA (PCIA. DE LA RIOJA – ARGENTINA)

SSEI TUCUMAN (PCIA. DE TUCUMAN – ARGENTINA)

