BARILOCHE DEL ESTE 2° Etapa
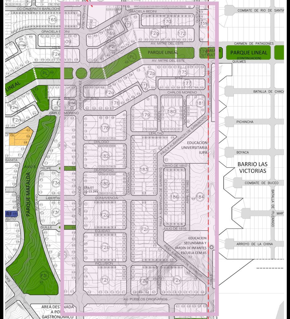
PLAN ESPECIAL DE ESTRUCTURACION URBANA (BARILOCHE – RIO NEGRO – ARGENTINA) El sector que estamos desarrollando de Bariloche del Este, […]
PLAN ESPECIAL DE ESTRUCTURACION URBANA (BARILOCHE – RIO NEGRO – ARGENTINA) El sector que estamos desarrollando de Bariloche del Este, […]
Bariloche delEste es un proyecto de urbanizacion que se esta desarrollando en una superficie de 132 Has. Este proyecto busca
Para agilizar nuestro proceso creativo y potenciar nuestro flujo de trabajo, integramos la Inteligencia Artificial Veras a través de Enscape.
Hemos sido invitados a participar con una charla sobre el uso del BIM en el curso de Capacitacion del CPAU.
Hemos participado en el último congreso EUBIM (encuentro de usuarios BIM), en la ciudad de Valencia. Este Congreso se realiza
Nos fue recientemente adjudicado conjuntamente con el Estudio Arq. Chain, el proyecto de arquitectura y la adecuación tecnológica del CENTRO
PROYECTO DE ARQUITECTURA Y ELABORACION DE LA DOCUMENTACION LICITARORIA PARA EL PROYECTO INTEGRAL DE PUESTA EN VALOR Y RENOVACION TECNOLOGICA.
MONSEÑOR BUFANO ESQ. HOMERO (LA MATANZA – PCIA DE BUENOS AIRES – ARGENTINA) Objetivo: Crear un espacio para albergar empresas
DISTRITO NUEVA ASUNCION, CHACO’I (VILLA HAYES – PARAGUAY) Un proyecto inmobiliario que promete conquistar el otro lado del río y
OBRA: PARQUE DE LA INNOVACIÓN – EDIFICIO PI (NUÑEZ – CABA – ARGENTINA) El Edificio PI prevé la construcción de
EDIFICIO RESIDENCIAL MANSILLA 3845 (CABA – ARGENTINA) Se trata de un lote lindero a una propiedad APH, correspondiente a la
PLAN ESPECIAL DE ESTRUCTURACION URBANA (BARIOCHE – RIO NEGRO – ARGENTINA) Área de Desarrollo Prioritario Bariloche del Este. La Fraccion
AEROPUERTO INTERNACIONAL DE CORDOBA (CORDOBA – ARGENTINA) La intervención comprende la ampliación de las dos plantas del Sector Público y
TORRES DE CONTROL Las Nuevas Torres de control tienen como objetivo principal la mejora de las condiciones de operatividad, visibilidad,
Hemos sido invitados a participar en el Congreso del BIM FORUM Argentina 2024 que tuvo lugar en el Parque de
CLUB HOUSE PRIDE CANNING (PCIA. BUENOS AIRES – ARGENTINA) Situado en la Ruta 58, km 10,5 Canning Pcia de Buenos
NUEVOS EDIFICIOS PARQUE OLIMPICO (CIUDAD AUTONOMA DE BS. AS.) En la zona del Parque Olímpico / Villa Olímpica (entre Villa Lugano, Riachuelo
CENTRO DE MONITOREO DE LANUS (PCIA. DE BUENOS AIRES – ARGENTINA) El nuevo Centro de Monitoreo de Lanús se proyectará
EDIFICIO MANZANARES 3226 (SAAVEDRA – CABA – ARGENTINA) Ubicado en el distrito R2B1, es un terreno de doble frente 17,33
EDIFICIO AV. SANTA FE 4611-45 (CABA – ARGENTINA) Se trata de un predio de amplias dimensiones sobre la Av. Santa
EDIFICIO MANZANARES 3277 (SAAVEDRA – CABA – ARGENTINA) Popietario Fiducons SRL En el Corazón de Saavedra, a pasos del emblemático
PUERTO MADERO (CABA) En una manzana ubicada en las calles Aime Paine, Rosario Vera Peñaloza, Julieta Lanteri y Encarnación Ezcurra
PUESTA EN VALOR Y RENOVACION TECNOLOGICA DEL TEATRO SAN MARTIN La puesta en valor del Teatro General San Martín en
INSTITUTO SATHYA SAI – CENTRO EDUCATIVO MADRE TERESA (MENDOZA – ARGENTINA)
TORRE TRONADOR (CABA – ARGENTINA) Este proyecto está ubicado en 2 lotes sobre la calle Tronador 656/676, generando un único
TORRES STURIZA (OLIVOS – PCIA. DE BUENOS AIRES, ARGENTINA) El edificio está emplazado en un lote sobre la Av. Libertador
AV. LIBERTADOR 220 (VICENTE LOPEZ – PCIA. DE BUENOS AIRES) Se tata de un conjunto de 2 torres de viviendas
CASA LAS VISTILLAS (TAJAMARES DE LA PEDRERA – ROCHA – URUGUAY) La casa esta ubicada en un conjunto denominado Tajamares
OFICINAS Y ESTUDIOS BUREAU TIGRE (AV. LINIERS 1730 TIGRE – PCIA. DE BUENOS AIRES) El conjunto resultante esta formado por
CONJUNTO HABITACIONAL TERRAZAS DE LA RECONQUISTA (9 DE JULIO – RINCON DE MILBERG – PCIA. DE BUENOS AIRES) Se
ESCUELA MAHATMA GANDHI (CASTELAR – PCIA. DE BUENOS AIRES – ARGENTINA) Esta escuela forma parte de un complejo Educativo compuesto
CASA CECILIA (TAJAMARES DE LA PEDRERA – ROCHA – URUGUAY) La casa está ubicada en un conjunto denominado Tajamares de
EDIFICIO CONGRESO (AV. CONSTITUYENTES 5501 ESQ. CONGRESO – CABA – ARGENTINA) Se trata de una esquina histórica de Villa Urquiza.
CASA LUCIONI (BARRIO LAS GLORIETAS NORDELTA – TIGRE – PCIA. DE BUENOS AIRES – ARGENTINA) La casa fue proyectada para
CASA PASCUAL (TAJAMARES DE LA PEDRERA – ROCHA – URUGUAY) El lote está ubicado en la zona más alta del
CASA LA SERENA 2 (ROCHA – LA PEDRERA – URUGUAY) Se trata de un complejo de 180 lotes ubicado en
CASA BOTINELLI (DELTA DEL TIGRE – PCIA. DE BUENOS AIRES – ARGENTINA)
REFORMA PISO 45 EDIFICIO LEPARC ( DEMARIA Y ORO PALERMO – CABA – ARGENTINA) Se trato de un trabajo de
AMPLIACION MUNICIPALIDAD DE CHIVILCOY (CALLE 25 DE MAYO – CHIVILCOY – PCIA. DE BUENOS AIRES – ARGENTINA) El edificio de
CONJUNTO GULLIVER (GULLIVER ESQUINA ONDINAS – PINAMAR PCIA. BUENOS AIRES – ARGENTINA) Se trata de un conjunto formado por 14
CGP12 NUEVA SEDE DE LA COMUNA 12 DEL GOBIERNO DE LA CIUDAD (CALLE HOLMBERG 2548 – CABA – ARGENTINA) La
EDIFICIO DE VIVIENDAS HUMBOLDT (HUMBOLDT 2212 CABA – ARGENTINA) Se trata de un terreno de 14.00 m de frente
LOTE 06 MANZANA 168 BEST (BARILOCHE PCIA. DE RIO NEGRO – ARGENTINA) Se trata de un edificio ubicado en un
CLUB TIGRE (DELTA DEL TIGRE – PCIA. DE BUENOS AIRES – ARGENTINA) CONJUNTO LURIN PROPUESTA URBANISTICA (LURIN – REPUBLICA
51 ESCUELAS POLIMODALES GERIATRICO BETH SION DOUER OHIGGINS 2780 (CABA – ARGENTINA)